暖通空调设计核心:从理论到实战的完整空气调节指南

mysmile 2 0
暖通空调设计核心:从理论到实战的完整空气调节指南

某设计院暖通空调设计教材之空气调节

你是否刚踏入暖通设计领域?这本173页的实战培训教材,正是为你量身打造,助你快速掌握空气调节的核心技术与设计精髓。

5 空气调节

5.1 围护结构热工要求

想象一下,你设计的空调建筑如何从源头节能?空调房间的平面布置至关重要,必须兼顾技术、节能与经济性。请遵循以下核心原则:

1 建筑平面与体型力求简洁规整,有效减少保温墙长度;

2 空调房间应集中布置,与一般房间明确区分;暖通南社

3 将温湿度参数、使用性质及消声要求一致的房间相邻或上下对齐布置;

4 坚决规避东西朝向和顶层布置,最大限度减少太阳辐射热影响;

5 避免紧邻高温高湿房间;

6 建筑转角处的空调房间,应避免在两面外墙均开窗,以降低传热和空气渗透。

5.1.2 围护结构传热系数K值需经技术经济比较确定,但不得超过以下限值:

屋顶1.0 W/(m2·℃),顶棚1.2W/(m2·℃),外墙1.5 W/(m2·℃),内墙和楼板2.0 W/(m2·℃)。注:内墙和楼板的K值仅适用于相邻房间温差大于3℃时。

5.1.3 寒冷采暖地区的围护结构传热系数,须符合《严寒和寒冷地区居住建筑节能设计标准》(JGJ26-2010);夏热冬冷地区则须符合《夏热冬冷地区居住建筑节能设计标准》(JGJ134-2016)。务必与上条数值对比,取较小K值。

5.1.4 位于顶层的空调房间必须设置顶棚,顶棚宜设保温层。屋盖可不保温,但应设通风窗(严寒地区除外),实现夏开冬闭。无顶棚平屋顶宜采用通风屋面。

5.1.5 外窗面积应最小化,并做好密封与遮阳。优先采用南北向,避免东西向。外窗与内窗层数确定原则:

1 室内外温差< 7℃时,宜用双层玻璃或单层吸热玻璃;

2 室内外温差≥7℃时,宜用双层玻璃或一层吸热玻璃;

3 内窗两侧温差≥5℃时,宜用双层窗;

4 内窗两侧温差< 5℃时,宜用单层窗;

5 双层窗建议用双框,单框时须严防夹层凝水积尘,并重点做好窗缝密封。

5.1.6 寒冷采暖地区的外窗,其窗墙比及传热系数须符合JGJ26-2010;夏热冬冷地区则须符合JGJ134-2016。同样需与上条要求对比,取K值小者。

5.1.7 外窗气密性等级不得低于Ⅱ级。

5.1.8 一般空调房间的实心地面可不设保温层。

5.1.9 严寒寒冷地区的外门应避开冬季主导风向。人员常出入的外门应设门斗或转门,人流密集处可加设空气幕。

门缝须严密。当(tw-tn) ≥ 7℃时,门应保温。门的传热系数可略大于所在墙体的传热系数。

注:tw—夏季空调室外计算干球温度,℃。

tn —— 夏季空调室内计算温度,℃。

内门两侧温差≥7℃时,也宜设门斗。

5.2.0 外围护结构必须考虑防潮隔冷。隔蒸汽层应设在蒸汽分压力较高的一侧,并依据计算确定。

需同时考虑夏冬两季的蒸汽分压力分布,必要时保温层两侧均设隔蒸汽层,并确保排除施工残留水分。

5.2 冷、暖负荷计算

5.2.1 空调负荷计算方法:

1 夏季设计冷负荷宜按不稳定传热法,对各种热源引起的负荷分别计算。

2 设计热负荷按稳定传热法计算,采用采暖负荷计算方法,室外设计温度取冬季空调计算温度。

5.2.2 房间得热量与冷负荷:

1 房间得热量是某一时刻由室内外热源传入房间的总和,分显热得热和潜热得热。

2 冷负荷是为维持设定温度,某一时刻必须由空调系统带走的热量。

3 当得热含辐射成分时,因围护结构及家具的蓄热放热效应,辐射得热在转为冷负荷过程中会发生衰减和延迟。得热量不一定等于冷负荷。只有得热不含辐射或室内无蓄热体时,两者才相等。

5.2.3 夏季计算得热量依据以下各项确定:

1 围护结构传入热量;

2 外窗太阳辐射热量;

3 人体散热量;

4 照明散热量;

5 设备、器具、管道等内部热源散热量;

6 食品或物料散热量;

7 渗透空气带入热量;

8 伴随散湿产生的潜热量。夏季冷负荷需根据得热种类及房间蓄热特性分别计算。

由不稳定传热、太阳辐射、人体散热及非全天使用设备灯具散热等形成的冷负荷,宜用不稳定传热法计算;切勿将得热量逐时值直接作为冷负荷即时值。

5.2.4 夏季计算散湿量依据以下各项确定:

1 人体散湿量;

2 渗透空气带入湿量;

3 化学反应过程散湿量;

4 潮湿表面、液面或液流散湿量;

5 食品或气体物料散湿量;

6 设备散湿量;

7 通过围护结构的散湿量;

确定散湿量时,应根据散湿源种类选用合适的群集系数、负荷系数和同时使用系数,有条件时采用实测值。一般民用建筑不计算第3项和第7项。

5.2.5 计算空调冷负荷时,宜考虑大气透明度影响。

无当地确切资料时,可乘以下列系数:清洁区 1.15;市区1.0; 工业区0.89。

5.2.6 当空调房间与邻室夏季温差大于3℃时,宜计算通过内隔墙和楼板等内围护传热形成的负荷。暖通

5.2.7 无外墙的舒适性空调房间,夏季可不计算地面传热冷负荷;工艺性空调房间有外墙时,宜按稳定传热计算距外墙2m范围内的地面传热负荷,传热系数取:非保温地面0.47W/(m2﹒℃);保温地面0.35W/(m2﹒℃),或按保温层热阻与地面第一地带热阻及两侧空气热阻之和计算确定。

5.2.8 当空调房间送风量大于回风量保持正压时,若正压风量大于无正压时的渗入风量,可不计算门窗缝隙渗透带来的热湿量;否则应计算部分渗入量或增加正压风量。无外门窗外窗时,不计此项。

5.2.9 计算餐厅负荷时,须计入食物散热量和散湿量,含显热和潜热,一般取:食物全热17.4W/人;显热8.7W/人;潜热8.7W/人;散湿11.5g/h﹒人。

5.2.10 有低温要求的空调房间,需计算因内外水蒸气分压力差通过围护结构的传湿量及相应潜热负荷,舒适性空调可不计。

5.2.11 空调房间夏季冷负荷,按各项逐时冷负荷的综合最大值确定。

1 空调系统夏季冷负荷,应根据服务房间的同时使用情况、系统类型及调节方式,按各房间逐时冷负荷综合最大值确定,并计入新风冷负荷及通风机、风管、水泵、水管和水箱温升、送风管漏风等附加冷负荷。

2 当末端空气处理设备存在冷热抵消时,应计入由此损失的冷量。

3 为考虑房间同时使用率,计算系统冷负荷时可取:中、小会议室80%,中、小宴会厅80%,旅馆客房 90% 。

5.2.12 必须计算空气通过通风机后的温升。

5.2.13 通过送、回风管壁的传热量应根据风管保温、内外温差、风速及面积等因素考虑。内外温差1℃、风管长10m时,空气通过不保温薄钢板风管的温升降可由表查得。

5.2.14 通过水泵后液体的温升及所引起的冷负荷附加率也可由表查得。

5.2.15 保温冷水管壁传入热量引起的温升及冷负荷附加,也可由表查得。

5.2.16 送风管道漏风引起的冷量损失,按以下附加率计算:风管长度>20m时10%,10~20m时5%,<10m不计。基数取相连空气处理机组计算负荷。送回风管均在空调空间时不计;漏风附加率还应加到送风机风量中。

5.2.18 水箱温升引起的冷量损失,根据水箱保温、环境温度,按稳定传热估算。暖通南社

5.2.19 高大空间采用分层空调时,可按有关手册详细计算。也可按全室空调逐时冷负荷综合最大值乘以经验系数α作为房间负荷,α=0.5~0.85,一般取0.7。

5.2.20 建筑物有内外分区时,计算内区空调负荷,除计算夏季冷负荷和冬季热负荷外,宜按夏季空调法计算除外围护结构外的各种得热引起的冷负荷。计算冬季冷负荷旨在规划内区供冷供热及调节方式,并处理冬季空气过程:

1 内外区有隔墙时,冬季冷负荷计算中,室内照明、人员、设备功率等宜与夏季取值相同。按最大冷负荷规划冬季供冷方案。

2 内外区无隔墙时,部分得热会通过对流转移至外区,使外区冬季热负荷和内区冷负荷减少。计算冬季内区冷负荷时,室内照明、人员、设备功率等取值宜比夏季减少,据内区面积、送风方式等综合确定。

5.2.21 全年动态负荷计算的应用:当利用热回收装置、室外新风调节负荷或蓄热蓄冷装置时,为准确预测节能效果或确定装置容量,宜进行全年动态负荷计算。

5.2.22 空调冷、暖负荷估算:

1 空调冷负荷估算指标(W/每m2空调面积)

暖通空调设计核心:从理论到实战的完整空气调节指南

2 采暖热负荷估算指标(W/每m2建筑面积)

暖通空调设计核心:从理论到实战的完整空气调节指南

注:本表未计入新风负荷,且按采暖室外计算温度估算。

5.3 系统设计

面对多样化的建筑需求,如何灵活划分与选择空调系统?系统设计是关键,需综合考虑使用特点、运行调节及经济性,经过技术经济比较确定。系统不宜过大。

5.3.2 空气调节系统可按下列条件划分:

1 设计参数(温湿度等)与使用时间相近的房间,宜划为同一系统。各房间应尽量靠近。

2 瞬时负荷变化差异大的房间应分设系统。可按朝向划分。同时需供热和供冷的房间宜分别设系统。

3 新风量占送风量比例悬殊时,按比例相近者分设系统。南社

4 有消声要求的房间不宜与无要求者划为同一系统,必须时需作局部处理。

5 有洁净度要求的房间不应与污染严重房间划为同一系统,也不宜与无要求房间划为同一系统,必须时需作局部处理。

6 大面积房间应按内、外区分设系统。一般距外围护结构4~6m范围为外区,其余为内区。

7 划分系统时,应使风管长度最短,减少重叠,便于施工、管理、调试和维护。

5.3.3 高层民用建筑在层高允许时,宜分层设空调系统。需垂直分设系统(如新风系统)时,每系统辖5~10层。

5.3.4 空调系统分类:

1 集中式→全空气,水—空气;全空气→定风量,变风量;定风量→单风道,双风道。水—空气→ FCU + PAU,诱导器。

2 分散式→窗式,分体式,柜式,户用热泵式。

5.3.5 建筑物或空调区域采用何种系统,应经技术经济比较确定。

1 全空气定风量单风道系统适用于需恒温恒湿、无尘无噪的高级环境,如净化房间、手术室、播音室等;也适用于房间大、人员多、参数要求一致的场所,如商场、影剧院、体育馆等。

2 全空气定风量双风道系统适用于需对单房间精确控制,或负荷分布复杂的场所。但此系统设备运行费高、能耗大,一般慎用。

3 全空气变风量系统适用于各房间需独立调温、控制精度不高的场所,如高端写字楼。尤其适合全年需供冷的大型建筑内区。

4 风机盘管加新风系统能满足独立调节需求,适用于旅馆客房、公寓、病房、办公楼,也可与变风量系统配合用于大型建筑外区。

5 诱导机式系统适用于需单独调节的多房间建筑,或大型建筑外区。

6 窗式或分体空调机系统独立性强,适用于房间分散、面积小、运行时间不一的场合。

7 柜式空调机系统适用于独立小型建筑。在集中冷源的大型建筑中,少数需单独运行的特殊场合(如出租店、机房等)也可采用。

8 各种热泵式系统独立性强,适用于全年需空调、冷热负荷接近的场所。

5.3.6 高大空间(高度>10m,体积>10000m³)建筑,应尽量采用分层空调。

5.3.7 当室内产生有害气体不能循环空气,或需全年全新风时,可选直流式系统。此类系统能耗大,应慎重选用。

5.3.8 确定空调系统运行工况时需考虑:

1 尽量避免空气处理中的冷热抵消。

2 充分利用室外空气自然调节能力,过渡季尽量采用全新风。

3 保证必要新风量下,冬夏尽量采用较大回风比以节能。散湿量小且全年使用的集中式系统,应考虑变动一次回风比的可能。仅夏季降温的系统一般不采用二次回风。

4 大型民用建筑内区,冬季仍有余热时,应优先利用室外低温空气降温,新风回风比例应可调,以利节能。

5 在不影响效果的前提下,不同季节可采用不同室内设计参数。

5.3.9 空调机房布置原则:

1 机房应尽量靠近空调房间,以缩短风管。同时离冷冻机房不宜过远,减少冷损。必要时可按集中与分散结合布置。暖通南社

2 机房门窗、基础、墙面、屋顶均需隔声。所有转动设备需减振。

3 机房不宜与空调房间共用出入口,门一律外开。机房内设地漏。

4 机房面积和净高按系统负荷、设备及风管尺寸决定,确保足够操作和检修空间。

5 无窗机房应有通风措施。

6 大型机房应有独立通往室外及搬运设备的出入口。设备过大时预留安装孔洞。

7 大型机房应设必要管理室(或值班室)及厕所。管理室内设电话。

5.3.10 高层或超高层民用建筑的空调机房可布置于地下室、顶层或中间设备层。系统竖向分设时,须符合《高层民用建筑设计防火规范》。

5.3.11 为防止房间串声,同一风管上的侧面送、排风口不应相对,否则应采取隔声措施,如增加支管长度或设消声弯头。

5.3.12 选择通风机、加热器、冷却器等设备时,应附加风管漏风量,按系统风量的0~10%计。风管计算压力损失宜附加10%~15%。

5.3.13 选择通风机时,应优先选用效率高、叶轮周速低的风机,并尽量在高效点运行。

5.3.14 变风量系统的通风机应选择全压曲线平稳、风量变化时压力变化小、效率高的型号。

5.3.15 空调装置安装在屋顶时,必须考虑遮阳防雨措施。

5.4 送风量与气流组织

5.4.1 空调系统送风量需能消除室内最大余热,按夏季最大室内冷负荷计算确定。

5.4.2 在满足舒适条件下,应尽量加大夏季送风温差,但不宜超过:

1 送风高度≤5m时,不超过10℃;

2 送风高度在5m以上时,不超过15℃;

3 送风高度在10m以上时,按射流理论计算;

4 采用顶部送风(非散流器)时,送风温差按射流理论计算。

5.4.3 空调系统新风量不应小于总送风量的10%,且不小于以下两项的较大值:

1 补偿排风和保持正压所需新风量;

2 保证各房间每人每小时所需新风量。

5.4.4 送入室内新风量应根据房间使用性质按下表采用:(每人m3/h)

暖通空调设计核心:从理论到实战的完整空气调节指南

5.4.5 空调房间主要送风形式多样,灵活选择是关键:

1 百叶或条缝风口侧送。送、回风口可布置成:单侧上送上回;单侧上送下回;双侧上送上回;双侧上送下回;单侧上送、走廊回风等。

仅夏季降温且层高较低时,可用上送上回;以冬季送热风为主且层高较高时,宜用上送下回;全年使用系统应根据气流组织计算确定;层高低、进深大房间宜用单侧或双侧送风,形成贴附射流。

2 散流器、孔板或条缝风口顶送。层高低、有吊顶或技术夹层可利用时,可用圆形、方形和条缝型散流器顶送。要求高时,可采用送风孔板和条缝风口等结合装饰的均匀顶送。

3 地板散流器下送。层高很高、进深很大的房间,可采用地板散流器下送。

4 喷口送风。高大空间场所,如会堂、体育馆、影剧院等,可采用喷口侧送或顶送。

5.4.6 气流组织计算时,若自由射流送风难以采用较大温差,宜采用贴附射流送风。

5.4.7 采用贴附侧送时,应符合:

1 送风口上缘离顶棚较远时,应设向上倾斜10’-20’的导流片。

2 送风口应设导流片防止射流左右偏斜。

3 射流射程中不得有阻挡物。

5.4.8 采用散流器贴附顶送时,应符合:

1 根据房间吊顶高度、允许噪声等确定散流器最大喉部风速,进而确定散流器型式和数量。

2 吊顶上部应有足够高度安装管道和风量调节阀。

3 布置散流器位置应利于诱导周围空气,避免死角,射程中无阻挡。

5.4.9 采用孔板下送时,应符合:

1 孔板上部稳压层高度按计算定,但净高≥0.2m。

2 向稳压层送风速度一般3~5m/s。除送风射程较长者外,稳压层内可不设送风分布支管。进风口处宜设导流片或挡板防止气流直吹孔板。

3 孔板布置应与室内局部热源分布相适应。

5.4.10 采用地板散流器下送时,应符合:

1 散流器布置应与室内局部热源分布相适应;

2 散流器不宜直装于人员座位下,应至少离开40cm;

3 地板下应有>300cm高空间,以便安装送风静压箱或风管。

5.4.11 采用喷口送风时,应符合:

1 喷口射程、速度、直径及数量应经计算确定;

2 确保人员停留区处于射流回流区;

3 圆形喷口收缩段长度为直径1.6倍,水平安装时角度经计算确定,一般≤15°。

5.4.12 高大空间采用分层空调时,送风方式应利于在空调与非空调区分界面形成空气隔层,减少负荷转移。

5.4.13 送风口风速应根据建筑性质、噪声要求及风口型式查表确定。

5.4.14 回风口布置方式:

1 回风口不应设在送风射流区和人员常停留处。侧送时一般设于送风口同侧。

2 有条件时可采用走廊回风,但走廊断面风速不宜过大。

3 以冬季送热风为主的系统,回风口应设在房间下部。

4 室内采用顶送且以夏季送冷风为主时,宜设与灯具结合的顶部回风口。

5.4.15 回风口吸风速度一般按表选用。房间噪声要求高时,应适当降低吸风速度,回风口构造应能防止噪声再生。

5.4.16 选择送、回风方式和风口形式时,在满足技术性能、气流均匀性前提下,应兼顾室内装饰及其他工种要求。

5.4.17 设有空调和机械排风系统的建筑,其送、回、排风口位置应利于维持所需空气压力状态:

1 空调房间应维持正压。

2 厕所、盥洗间、设备用房应维持负压。

3 旅馆客房维持正压,盥洗间维持负压。

4 餐厅前厅维持正压,厨房维持负压。餐厅空气压力应处于前厅和厨房之间。

5.5 空气处理过程

5.5.1 空气处理设备按最不利负荷条件确定。为满足全年需求,应进行运行工况分析。处理方案按工程性质选用,力求调节简单、运行费用低。

为节省能量,在允许条件下应最大限度利用回风。过渡季应大部或全部利用新风。在允许条件下,应最大限度采用热回收技术。

5.5.2 冷却空气时,应优先采用循环水蒸发冷却;达不到要求时,尽量采用天然冷源(如地下水、山涧水等);仍达不到时采用人工冷源,并考虑用天然冷源预冷空气。

5.5.3 空气冷却装置选择:

1 采用人工冷源时,一般选冷水式空气冷却器。需冬季或过渡季用循环水绝热加湿或喷水增加饱和度时,可用带喷水装置的冷水式冷却器。

2 制冷机房与空调机房靠近时,可用直接膨胀式空气冷却器。

3 采用循环喷水、蒸发冷却或地下水、山涧水等为冷源时,宜用双级喷水冷却的喷水室,并尽量回水重复利用。

4 人员密集场所(如影剧院、体育馆、会堂等),采用人工冷却且有条件时,宜用喷水室,以改善空气品质。

5.5.4 采用冷水式或直接膨胀式空气冷却器时,空气与冷水或冷媒应逆向流动。宜在冷却器后增设挡水板。

5.5.5 直接膨胀式空气冷却器的蒸发温度应比空气出口干球温度至少低3.5℃;满负荷时蒸发温度不宜低于0℃,低负荷时应有防表面结冰措施。

5.5.6 冷水式空气冷却器的冷水进口温度应比空气出口干球温度至少低3.5℃。冷水温升宜用2.5~6.5℃。用于空气冷却去湿时,冷水出口温度应比空气出口露点温度至少低0.7℃。管内冷水流速一般0.6~1.8m/s。

5.5.7 采用冷水式空气冷却器时,如无特殊情况,不得用盐水作冷媒;采用直接膨胀式时,严禁用氨作制冷剂。

5.5.8 采用喷水室处理空气,若以人工冷源实现冷却去湿,每级喷水室喷嘴一般用两排对喷,喷水量不足时增加排数。排间距一般0.6m。喷嘴密度宜18~24个/m²。喷水室断面空气质量流速一般2.5~3.5kg/m²·s,冷水温升一般3~5℃。以天然冷源为冷媒时,温升值经计算确定。

5.5.9 喷水室热工计算时,应考虑挡水板后气流带水量对处理后空气参数的影响。做好喷水室壁与挡水板间密封。挡水板后空气带水量可查表。喷水室补水量一般取总喷水量的2%~4%。

5.5.10 加热空气热媒一般用热水或蒸汽。室温允许波动范围≥±1℃,当某些房间需单独控制且选用热水或蒸汽加热困难或不经济时,室温调节用二次加热器可采用电加热器。

5.5.11 室外空气或混合空气的焓≤10.5kJ/kg时,进入空气处理室前应考虑预热。

5.5.12 空气加热器的热量附加值按制造厂规定取用。无规定时按10%-20%考虑,此部分附加值在水力计算中不计。

5.5.13 空气通过加热器的质量流速宜8~12kg/m²·s。加热器一般应设旁通阀。

5.5.14 确定电加热器容量时,应对引起室温波动的因素进行分析:

1 室内照明、人体、设备发热量波动;

2 室外温度变化引起的传热量波动;

3 通过玻璃窗进入室内的热量波动;

4 前一级加热器温度波动引起的送风温度波动。

5.5.15 两管制空调水系统的空气冷却器和加热器可合用,但应分别计算所需换热面积,取大值。冬夏水流量相差很大时,宜分别设置。

5.5.16 高层民用建筑空调系统中的冷水式空气冷却器、热水加热器、空气预热器,均应认真核对承压能力须大于工作压力(系统最大静压与动压之和),确保安全。

5.5.17 空调系统的新风和回风(不含二次回风)宜过滤,过滤设备一般宜用无纺布或泡沫塑料等滤料的过滤器,禁用油过滤器。过滤器阻力按终阻力计算。过滤器应便于拆装更换,有条件时应装阻力检测报警装置,以便及时更换清洗。

5.5.18 医院空调系统的过滤措施须符合净化要求:

1 抢救室、观察室、病房、专科病房和一般手术室的新风和回风,均应经初、中效过滤。

2 血液病房、无菌手术室、无菌室和细菌培养室的新风及回风,均应经初、中效过滤。

3 洁净手术室的新风及回风,应经初、中效过滤,送风口处装高效过滤器,并宜在手术区内组成层流气流。

4 烧伤病房、传染病房应采用直流式空调系统,排风须经过滤后再排入大气。

5.5.19 高级民用建筑(如高级宾馆、医院、公寓、办公楼等)及有湿度要求的其他民用建筑,其空调系统冬季应有加湿措施。可采用蒸汽、离心、高压喷雾、超声波、湿膜及喷淋室等加湿方式。

5.5.20 寒冷和严寒地区空调系统,空气处理装置应有冬季防冻措施:

1 新风入口设密闭多叶阀或保温风阀,启闭与风机连锁。

2 加热器热媒温度达下限时,自动关闭风机。热媒管路上调节阀设最小开度控制,温度达下限时开大水路调节阀,保证加热器内流速。

3 必要时可设空气预热器,但预热器水路不设自动调节阀。

5.6 典型设计图简介

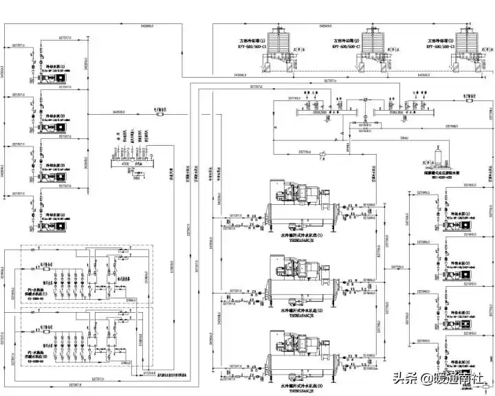
5.6.1 水—空气式中央空调系统:

暖通空调设计核心:从理论到实战的完整空气调节指南

全空气式中央空调系统:

暖通空调设计核心:从理论到实战的完整空气调节指南

5.6.2 中央空调水系统:

暖通空调设计核心:从理论到实战的完整空气调节指南

...

本教材由徐桓、刘涛、潘涛、田盛松、王健编著,暖通南社整理编辑。想深入掌握这些实战技巧吗?立即系统学习,将这些核心知识融入你的下一个设计项目,打造更高效、更节能的空调系统!

相关问答

通风与空气调节在概念上有何区别_作业帮

通风与空气调节在概念上有何区别题目通风与空气调节在概念上有何区别答案解析解答一前者只是换气,后者是制冷+换气。但都没有空气过滤功能。想三者结合就得装...

空气压力怎么调最好?

空气压力表的调试步骤如下:1、打开贮气罐阀,使罐内的压力气体流入减压阀的进入口端,此时进口端压力表A指示的读数为罐内的压力值;2、微开减压阀,此时出口...

室内空气加湿的正确方法_齐家装修问答

室内空气太干燥的话,我们住着都不舒服。为了改善室内空气湿度,可以养些水生花草,由于植物有蒸腾作用,能实现湿度的调节,而且它是纯天然加湿器很环...

要想改善空气污染,我们应该怎样去做呢?(至少三条)_作业帮

要想改善空气污染,我们应该怎样去做呢?(至少三条)题目(至少三条)答案解析解答一1.使用清洁能源,2.减少汽车尾气排放,3.调整产业结构,4.把空气质量作为政...

全热式空调气流分配工作过程-汽车维修技术网

[回答]全热式空调的工作过程:外气+内气→进入风机→进入蒸发器冷却→全部进入加热器芯→由风门调节风量后进入各吹出口。从图4-27中可以看出,全热式与空气...

空气捻接器怎么调节?

空气捻接器调节方法是调节程序,确认空气压力不低于检查捻接腔、腔盖和振荡器,类型是否和纱线特征相符合。把牵伸调节指针调到捻接区最长;加捻调节指针调到关闭...

空气能调节器怎么调节?

空气能调节器调节方法为:按设置键2秒进入系统。按提示字母进入限温度调节,用箭键调节所需限温度即可进行设置。根据自己的需求设定温度即可。按键开机,再次按...

空气调节扇原理?

水蒸发式空气调节风扇(下称空调扇),是一种节能降温产品,其原理是在机身内的风机组件的进风口处安装有水蒸发载体,风机驱驶空气通过水蒸发载体,促使水在常温下...

车内空气调节花粉过滤怎么用_车坛

2.空调滤芯的具体位置同样在右侧引擎盖下方,掀开引擎盖后同样在挡风玻璃左下方。3.花粉过滤器其实就是车载空气净化装置。主要用在中高端轿车和豪...

空气能控制器怎么设置?

首先按住控制面板的设置键,2秒将进入系统。根据提示字母进入限温调节,上下箭即可进行设置,按照自己的需求设定温度即可。长按为开机,再次按可以关机。提醒朋...